您當前的位置:首頁 / 新聞中心 / 公司新聞 / 調節閥廠家帶您了解氣動切斷閥結構特點及工作原理
氣動切斷閥是一種高性能切斷閥,用于在工藝管道發生突然故障或事故時緊急、快速地關閉管道介質中的流體(液體、氣體)。動作、關斷嚴密、安全可靠。危險品的處置和處置廣泛應用于儲存和運輸過程中。在發生燃氣泄漏、事故、操作不當、人員無法接近等情況時,閥門將迅速啟動。長距離封閉,提供安全保護。
1、切斷閥采用膜片式多彈簧執行機構,與三柱調節機構相連,整體高度降低30%右。您可以減輕約30重量。
2、閥體根據流體力學原理設計了截面均勻的低流阻流道,額定流量系數提高30%
3、閥內件密封有兩種,緊密封和軟密封。緊密型采用表面硬化合金制成,軟密封型采用軟質材料制成,在關閉狀態下具有優良的密封性能。
4、平衡閥內件增加了切斷閥的允許壓差。

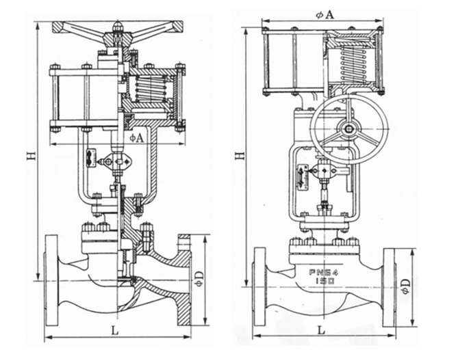
氣動帶手動活塞式切斷閥結構圖
氣動切斷閥主要由執行機構和閥體兩部分組成,通常由控制室/控制中心操作,安全操作。氣動切斷閥的基本要求是:它緊密而迅速地關閉,并具有防火結構。在常規閥門中,密封性能高的金屬密封是zui好的,但在使用軟密封結構時,它必須是防火結構,這樣即使軟密封結構失效也能阻擋危險物質不要流入物料和事故現場!
氣動切斷閥無氣壓時,閥瓣常閉。當氣泵向切斷閥氣缸內注入壓力氣體時,閥瓣打開。如果需要緊急切斷閥,請在關閉或緊急情況下釋放壓力。也就是說,它迅速關閉以阻止泄漏。閥門工作介質的流動方向,閥座末端為出口,安裝一般采用高入口低出口。
調節閥廠家推薦您查看相關產品:
相關新聞
氣動切斷閥的結構、工作原理2023-10-09
氣動切斷閥是一種常見的工業閥門,主要用于控制流體的流動。它通過氣壓控制閥門的開關,實現對管道中流體的…
氣動切斷閥是許多工業應用中的重要組成部分2023-10-09
氣動切斷閥由以下部分組成:閥體、閥蓋、閥芯、密封圈、氣動執行器等。由利沃夫切斷閥廠家介紹一下氣動切斷…
氣動切斷閥的功能用途2023-04-12
氣動切斷閥的功能用途 氣動切斷閥的功能是用于管線上快速切斷,保證系統安全,具有結構簡單,反應靈敏,動…
氣動切斷閥作用和用途2022-05-20
前面我們了解到了氣動切斷閥分類由氣動薄膜切斷閥、氣動活塞式切斷閥、氣動快速切斷閥,接下來由利沃夫切斷…
氣動切斷閥分類有哪些2022-05-20
?利沃夫氣動切斷閥根據使用工況和用途可分為氣動薄膜切斷閥、氣動快速切斷閥、氣動緊急切斷閥、氣動O型切…
什么情況下選用ZSPC氣動活塞切斷閥2022-04-20
?什么情況下選用ZSPC氣動活塞切斷閥?接下來由利沃夫切斷閥廠家告訴你ZSPC氣動活塞切斷閥使用條件,除了使用…